戸建物件 3,800万円

担当者より
繁華街へ徒歩圏の市街地では希少な庭付き戸建です。前面道路は下水道あり。
学校へも近く住環境の良い立地になります。
1階道路側は事務所等としても利用可能で、事務所等兼住居としていかがでしょうか。
※文教地区(ホテル又は旅館等不可)
※用途地域の過半は第二種住居
| 所在地 | 宮古島市平良字下里 |
|---|---|
| 地域 / 学区 | 平良 / 平一学区 |
| 権利 | 所有権 |
| セットバック | |
| 接道状況 | 北東側1号 |
| 建物構造 | 鉄筋コンクリートブロック造 |
| 借地料 | |
| 引渡時期 | 相談 |
| 価格 | 3,800万円 |
|---|---|
| 土地面積 | 253.82㎡ (76.78坪) |
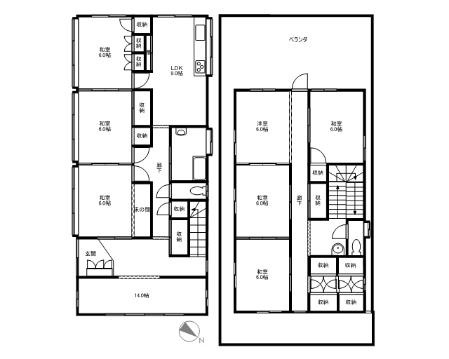
| 間取り | 5K以上 |
| 建物面積 | 193.12㎡ (58.42坪) |
| 築年月 | 1986年6月(築39年) |
| 所在地 | 宮古島市平良字下里 |
| 建ぺい率 | 60% |
| 容積率 | 200% |
| 幅員 | 12m |
| 接道長さ | 8m |
| 地目 | 宅地 |
|---|---|
| 都市計画 | 未線引区域 |
| 用途地域 | 第二種住居、 第一種中高層住居専用 |
| 取引態様 | 媒介(仲介) |
| 水道 | 引込済 |
|---|---|
| 電気 | 沖縄電力 |
| ガス | プロパン |
| 下水 | 浸透(前面道路下水あり) |
| 物件番号 |
掲載されている物件データが現況と異なる場合は現況を優先します。
弊社は予約優先です。予約のない方はお待ちいただく場合がございます。事前予約の方は、ご案内含め全てスムーズに進みます。