戸建物件 7,800万円

担当者より
コンビニ・ドラッグストア徒歩圏、生活に便利な立地にある物件です。
自営業等の方で事務所兼自宅や、1階賃貸にて収益を得てローン返済に充てる等、利用用途は様々です。
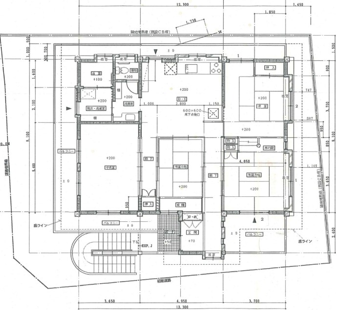
※1階:105.31㎡、2階118.96㎡
※1階平成15年増築、建築確認、完了検査なし
※2階リビングの和室→フローリング
※ご内見要予約
| 所在地 | 宮古島市平良字西里 |
|---|---|
| 地域 / 学区 | 平良 / 平一学区 |
| 権利 | 所有権 |
| セットバック | |
| 接道状況 | 南側1号、東側位置指定道路 |
| 建物構造 | その他 (鉄骨・コンクリートブロック) |
| 借地料 | |
| 引渡時期 | 相談 |
| 価格 | 7,800万円 |
|---|---|
| 土地面積 | 266.48㎡ (80.61坪) |
| 間取り | 4LDK |
| 建物面積 | 224.27㎡ (67.84坪) |
| 築年月 | 2001年4月(築25年) |
| 所在地 | 宮古島市平良字西里 |
| 建ぺい率 | 50% |
| 容積率 | 100% |
| 幅員 | 10m |
| 接道長さ | 15m |
| 地目 | 宅地 |
|---|---|
| 都市計画 | 未線引区域 |
| 用途地域 | 第一種低層住居専用 |
| 取引態様 | 媒介(仲介) |
| 水道 | 引込済 |
|---|---|
| 電気 | 沖縄電力 |
| ガス | プロパン |
| 下水 | 浄化槽設置済 |
| 物件番号 |
掲載されている物件データが現況と異なる場合は現況を優先します。
弊社は予約優先です。予約のない方はお待ちいただく場合がございます。事前予約の方は、ご案内含め全てスムーズに進みます。