戸建物件 3,890万円

担当者より
スーパーや繁華街まで徒歩圏と立地の良い物件です。
建物はフルリノベーション済み。室内設備はすべてが新品で、外壁塗装・屋上遮熱防水塗装済みです。
※表示の土地面積は換地処分後の予定面積です(登記簿:124.97㎡)
※用途地域について過半は準住居
※越境あり、詳細はお問合せください
| 所在地 | 宮古島市平良字西里 |
|---|---|
| 地域 / 学区 | 平良 / 平一学区 |
| 権利 | 所有権 |
| セットバック | |
| 接道状況 | 2方1号道路 |
| 建物構造 | 鉄筋コンクリートブロック造 |
| 借地料 | |
| 引渡時期 | 相談 |
| 価格 | 3,890万円 |
|---|---|
| 土地面積 | 140.25㎡ (42.43坪) |
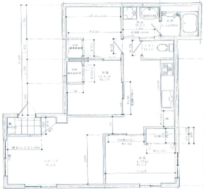
| 間取り | 3LDK |
| 建物面積 | 59.27㎡ (17.93坪) |
| 築年月 | 1976年3月(築49年) |
| 所在地 | 宮古島市平良字西里 |
| 建ぺい率 | 200% |
| 容積率 | 60% |
| 幅員 | 13.5m |
| 接道長さ | 10m |
| 地目 | 宅地 |
|---|---|
| 都市計画 | 未線引区域 |
| 用途地域 | 準住居、 第二種中高層住居専用 |
| 取引態様 | 媒介(仲介) |
| 水道 | 引込済 |
|---|---|
| 電気 | 沖縄電力 |
| ガス | プロパンガス |
| 下水 | 接続済み |
| 物件番号 |
掲載されている物件データが現況と異なる場合は現況を優先します。
弊社は予約優先です。予約のない方はお待ちいただく場合がございます。事前予約の方は、ご案内含め全てスムーズに進みます。