casa西里1 A
- おすすめポイント!
- 日当り良好
- スーパー近く
- コンビニ近く
- エアコン付き
- ペット相談可
- ネット込
- 駐車場付
担当者より
Wi-Fi無料、家具家電付き(現状有姿優先)
直ぐに生活の出来る環境が揃っています!
| 設備 | 閑静な住宅街・プロパンガス・駐車場2台可・平面駐車場・駐車場2台無料・地デジ対応・インターネット月額利用料無料・インターネット使用料無料・フローリング・冷暖房・照明器具・エアコン全室・洗濯機置場(室内)・洗濯機・全室照明付き・テレビ・電子レンジ・カーテン付・ダイニングテーブル・デスク・システムキッチン・対面キッチン・冷蔵庫・コンロ3口以上・給湯(ガス)・シャワー・バス・トイレ別・温水洗浄暖房便座・室内洗濯置場・独立洗面台・シャンプードレッサー・洗面化粧台・クローゼット・TVインターホン |
|---|---|
| 周辺施設 | いけむら保育園 494m 宮古島市立東小学校 宮古島市立平良中学校 1385m 沖縄県立宮古高等学校 1389m スーパー 728m |
| 保証会社 | 利用必須 / 全保連株式会社 / 初回保証委託料:月額賃料の100% |
| 住宅保険料 | 有 |
| 契約形態 | 普通借家・ 契約期間 24ヵ月 |
| 取引態様 | 媒介 |
| 入居可能日 | 即入居可 |
| 入居条件 | |
| その他の入居条件 | |
| その他初期費用 |
ハウスクリーニング費用 55,000円(税込) 仲介手数料:賃料1ヶ月分+消費税 |
| その他月額費用 | 水道料 3,300円(税込) |
| 退去時費用 |
- ※故意又は過失による汚損・破損は別途費用がかかる場合がございます。 |
| 備考 | 不要家具は引き上げ可。エアコン等電化製品の故障等の修理・交換・撤去は借主負担 |
| 賃料 | 22.8万円 |
|---|---|
| 共益費 | なし |
| 敷金 / 礼金 | なし / 2ヶ月 |
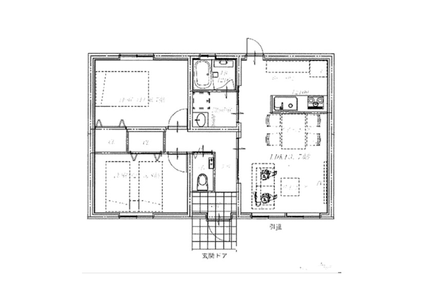
| 間取り | 2LDK (西) |
| 面積 | 60.09㎡ (36.3帖) |
| 築年月 | 2024年11月(築1年) |
| 所在階 | 1階 / 1階建 |
| 部屋向き | 西 |
| 建物名 | casa西里1 |
|---|---|
| 所在地 | 沖縄県宮古島市平良字西里871-9 |
| 駐車場 | 敷地内あり (無料) |
| 物件種別 | 一戸建て |
| 建物構造 | RC(鉄筋コンクリート造) |
| 総戸数 | |
| 物件番号 | 20392957 |
掲載されている物件データが現況と異なる場合は現況を優先します。
弊社は予約優先です。予約のない方はお待ちいただく場合がございます。事前予約の方は、ご案内含め全てスムーズに進みます。
情報公開日:2026/02/27
更新予定日:
更新予定日:












